項目特色


風景如畫的林蔭大道和綠樹成蔭的街道,強烈的藝術風格和設計工藝在建築中得到了體現。
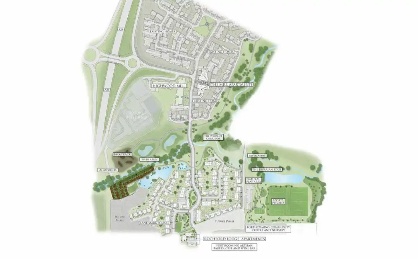
與周圍的蘇塞克斯風格住宅相輔,輔以鬱鬱蔥蔥的綠色植物、美麗的景觀大道和河景,在這裡可以體驗鄉村之美、感受季節交替所形成的季節性色彩,繁華中感受現代鄉村生活。
(Highwood Village)位於西薩塞克斯郡霍舍姆大道。

☑生活圈:專案與都市連結
☑四通八達的交通出行:專案週邊多條高速環繞,距離霍舍姆火車站開車可達,出行方式多樣化
☑配套設施完善:購物者的天堂霍爾舍姆,遍布精品店的商業街,The Forum、John Lewis和Waitrose也在附近。
項目推薦
鄉村生態:
在沃納姆附近體驗大自然的景色和聲音,當地的自然保護區有野生蘭花和啄木鳥、藍翠鳥在水裡和池塘裡嬉戲。
擁有通往自然景觀的小徑,距離南水郊野公園很近。
小區還有90英畝的開放空間,在那裡你可以看到野生動物的棲息地,並觀察他們。在恐龍島的空中走道上玩冒險遊戲。
叢林鞦韆和湖邊步道,在寧靜的小徑眺望南唐斯公園有著起伏的山巒,以及漫步數無車步道,馬道和小徑。
晚上散步,可以到快節奏的登山車路線,騎自行車到Ditchling Beacon山頂看風景。
現代商圈:
皮里斯廣場耗資3500萬英鎊進行升級改造,打造了一個全新的購物和餐飲綜合設施以及位於霍爾舍姆的Everyman電影院。
停下來在論壇廣場吃早午餐或午餐,在卡法克斯遮陽傘下聽著音樂台演奏享受咖啡。
每週四和週六的街頭小吃市場體驗更是令人興奮,當地新鮮的農產品食材,如手工麵包、自製蛋糕和當地釀造的精釀啤酒都會被搬到攤位上售賣。
霍爾舍姆及其周邊地區到處都是各式各樣的餐廳、cafés和酒吧。在米其林餐廳特里斯坦享受浪漫的晚餐亦或是品嚐道地的日本料理Kokoro。
Horsham每年都會舉辦大小吃節來慶祝它對食物的熱愛,這個節日展示了工匠產品和誘人的街頭小吃,以及當地較好的啤酒、葡萄酒和烈酒的令人愉快的混合。

項目資源
入住highwood village更是讓你的孩子在家門口就能坐擁豐富的教育資源,涵蓋小學到高中教育階段。接受較好的教育,為小孩的未來打下堅實的基礎。
Tanbridge House School
這是一所專為11至16歲學生開設的科學、數學和計算機學校,以實現“非凡的每一天」為宗旨。Tanbridge House獲得了良好的聲譽,目前擁有Ofsted的「傑出」評級。
Arunside Schoo
一直以來都以其友善、關懷的氛圍、令人印象深刻的學習環境和豐富的課程而備受稱讚。
The College of Richard Collyer
「科利爾斯」是一所男女同校的六中學院,提供廣泛的A- level課程選擇。科利爾斯的學習環境使學生發展學術和個人潛能。在英國教育標準局(Ofsted)的評級下,它的通過率在該地區名列前茅。
Horsham Nursery School
霍舍姆幼兒園成立於1942年,一直為幾代人提供早期教育。入學從6個月大開始,托兒所分為3歲以下的部分和3歲以上的幼兒園。該托兒所已被英國教育標準局評為「好」。
The Forest School
這是一所針對11至16歲男孩的綜合學校,成績高於平均。英國教育標準局將森林學校評為「好」學校,這裡的學生在積極的學習環境中茁壯成長,智力得到激發。
Farlington School
成立於1896年的獨立日寄宿學校為3歲至18歲的女孩提供的教育。法靈頓預科學校已經入圍2018年年度預科學校的候選名單,並被《星期日泰晤士報》列入了英國前100所預科學校。
Christ’s Hospital Boarding School